Create Your First Project
Start adding your projects to your portfolio. Click on "Manage Projects" to get started
Halo
Role
Lead Designer
Project type
Presentation Centre & Display Unit
Date
2024
In collaboration with the marketing team and graphic designers, I helped bring Halo to life: an immersive, story-driven sales office inspired by the soft serenity of White Rock and Crescent Beach. The design embraced a coastal theme, weaving in light wood tones, airy neutrals, and modern details to create a calm, welcoming atmosphere with a gentle nod to the nearby shoreline.
Uniquely built on a trailer, the sales centre required extra thoughtfulness in both layout and execution. Every inch had to be intentional. From early concept to final install, I was deeply involved, conducting site walkthroughs at every phase to ensure the design stayed aligned and came together with care.
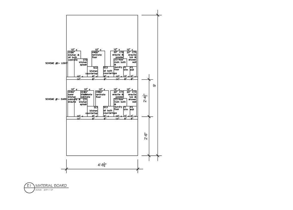
I led the space planning and partnered closely with the CAD team to develop detailed reflected ceiling plans, finish plans, and layout drawings for both the Presentation Centre and display home. I sourced all lighting, artwork, and furniture, making sure each piece supported the coastal-modern vision we set out to achieve.
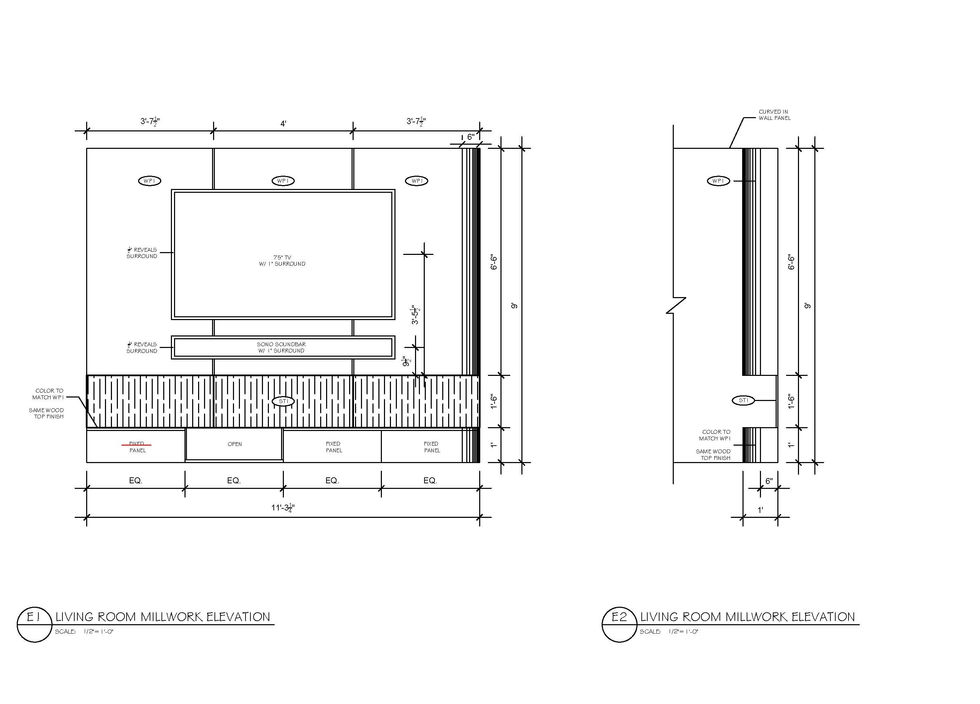
Some of my favorite custom touches included a living room TV wall, a soft, curved sectional, fluted glass details on a headboard wall, and playful geometric shapes. Each was thoughtfully designed in collaboration with millworkers and specialty trades. I also designed custom closets, window treatments, bedding, and cushions to bring in that layered, cozy feel that makes a space truly livable.
In the Presentation Centre, key features included a fluted wood reception desk and a curved model table with built-in storage. Both were tailored for the sales team’s day-to-day needs while still feeling elevated and on-brand.
Halo was such a meaningful project filled with collaboration, creative problem-solving, and hands-on design thinking. It was a beautiful opportunity to translate the relaxed elegance of South Surrey’s coast into a space that felt both polished and personal.
All images & drawings © Polygon Homes Ltd.
Used with credit for portfolio purposes only.





























































