Create Your First Project
Start adding your projects to your portfolio. Click on "Manage Projects" to get started
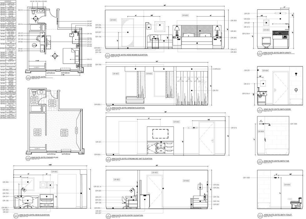
Hampton Inn, Yukon
Role
Lead Designer
Project type
Renovation- Hotel
Date
2019
As the lead designer for this Hampton Inn renovation in Yukon, USA, I was responsible for everything from space planning to creating specification packages, making sure the design followed the latest franchise brand standards before submitting for approval. The franchise was in the process of refreshing and updating their older properties to match their new look and feel, which came with some unique challenges. One of the biggest design issues was the corner vanity layout—there wasn’t enough space to fit the new standard model. Another challenge was the closet being right next to the window, and since we couldn’t move it in most room types, I came up with a solution by designing a custom wall-to-wall drapery that acted as a soft, seamless closet door.
I also removed the existing desk and combined a new work surface into the custom TV millwork, creating a cleaner and more space-efficient layout. This project involved a lot of creative problem-solving and working closely with the franchise team to make sure everything was both practical and aligned with brand expectations.
All images & drawings © Hospitality Designs.
Used with credit for portfolio purposes only.









































